ads/auto.txt

Business Excellence Awards Bendigo

The Dress I Made For Marika Mcmahon For The Bendigo Business Excellence Awards Silk Satin With Black Silk Lining Dresses With Sleeves Silk Satin Black Silk

The Dress I Made For Marika Mcmahon For The Bendigo Business Excellence Awards Silk Satin With Black Silk Lining Dresses With Sleeves Silk Satin Black Silk

Pin By Quinton S Iga On Quinton S Iga Business Awards Chalkboard Quote Art Quinton

Pin By Quinton S Iga On Quinton S Iga Business Awards Chalkboard Quote Art Quinton

Bendigo Magazine Ad House Design Design Townhouse

Bendigo Magazine Ad House Design Design Townhouse

Wordpress Template Avada Jackalfencing Com Au Wordpress Template Wordpress Wordpress Slider

Wordpress Template Avada Jackalfencing Com Au Wordpress Template Wordpress Wordpress Slider

Later Com Corporate Rentals Excellence Award Group Insurance

Later Com Corporate Rentals Excellence Award Group Insurance

All I Want For Christmas Spasa Victoria Pool Of The Week Evolution Pools Bendigo Pool Pool Builders Fiberglass Swimming Pools

All I Want For Christmas Spasa Victoria Pool Of The Week Evolution Pools Bendigo Pool Pool Builders Fiberglass Swimming Pools

All I Want For Christmas Spasa Victoria Pool Of The Week Evolution Pools Bendigo Pool Pool Builders Fiberglass Swimming Pools

Bendigo blues and roots music festival the australian sheep and wool show and bendigo on the hop are in the running to receive a bendigo business excellence award for events and attractions in 2019.

Business excellence awards bendigo. 1 471 likes 1 talking about this 6 were here. Entrants finalists and winners will be offered a free range of opportunities and experiences that will enhance and improve their business by. Knowing greater bendigo has a magnificent and diverse business culture the business excellence awards recognise greater bendigo s most innovative focussed and entrepreneurial businesses across each industry category.

Bendigo business excellence awards bendigo victoria. Three individuals and two businesses are in the running to win inaugural accolades at the 2018 bendigo business excellence awards. Under the award guidelines the social enterprise category is defined as a not for profit organisation that applies commercial strategies to maximise improvements in human and environmental wellbeing.

Welcome to the business excellence awards presented by be bendigo and bendigo bank. The bendigo business excellence awards is the only awards program of its kind in the greater bendigo region with the 2019 program attracting over 600 guests to the gala dinner held at the all seasons resort hotel. Tickets are on sale and the finalists in the 2018 bendigo business excellence awards have been announced with very little points separating businesses in each of the fifteen categories.

Today we are australia s leading supplier of underground cable networks connecting communities to power nbn and renewable energy. The bendigo bank macedon ranges business excellence awards recognises and acknowledges deserving businesses for their outstanding service innovation products and professionalism. A new search for excellence in business is on its way as bendigo advertiser be bendigo and twenty other category sponsors and partners celebrate the 25 th annual bendigo business excellence awards with the 2018 gala scheduled for friday 1 st june.

The 2018 program for emerging and established business leaders is set to reach new heights as it again recognises the tremendous achievements of. Bendigo business excellence awards 2019.

Boutique Goldsmiths Concept By Green Room Uk Retail Design Blog Showcase Design Retail Design Design

Boutique Goldsmiths Concept By Green Room Uk Retail Design Blog Showcase Design Retail Design Design

Morwellcentralps 05 Atolyearch Primaryschool Escola

Morwellcentralps 05 Atolyearch Primaryschool Escola

Holy See Pavilion In Expo 2015 Pavilion Glass Pavilion Wooden Pavilion

Holy See Pavilion In Expo 2015 Pavilion Glass Pavilion Wooden Pavilion

Tarjeta Pvc Combo 11 Impresion A Doble Cara Con Codigo De Barras O Qr Variable Pedidos Por Web Centralimpresion Com Telefono Whatsapp 655599771 En Event

Tarjeta Pvc Combo 11 Impresion A Doble Cara Con Codigo De Barras O Qr Variable Pedidos Por Web Centralimpresion Com Telefono Whatsapp 655599771 En Event

Jumeirah Nanjing Projects Ltw Designworks Restaurant Interior Design Hotel Interiors Luxury Restaurant

Jumeirah Nanjing Projects Ltw Designworks Restaurant Interior Design Hotel Interiors Luxury Restaurant

Mix Of Old And New Decoration Love The Bold Black And White Striped Awning French Cafe Decor Cafe Design Porch Interior Design

Mix Of Old And New Decoration Love The Bold Black And White Striped Awning French Cafe Decor Cafe Design Porch Interior Design

Mpreis Bad Hofgastein Supermarkte Pinterest Building Architecture And Arch

Mpreis Bad Hofgastein Supermarkte Pinterest Building Architecture And Arch

Pin On Architecture

Pin On Architecture

Church Media

Church Media

If U Are Thinking Of Buying Or Selling Your House In The Redlands Why Not Pop In And See Janet Bennett And The Wonderful Cereal Pops Redlands Pops Cereal Box

If U Are Thinking Of Buying Or Selling Your House In The Redlands Why Not Pop In And See Janet Bennett And The Wonderful Cereal Pops Redlands Pops Cereal Box

Pin By Hjchiro Khanh On L A Healthcare Architecture Office Building Architecture Architecture Building

Pin By Hjchiro Khanh On L A Healthcare Architecture Office Building Architecture Architecture Building

Filip Slapal Interior Architecture Design Retail Interior Design Lobby Interior

Filip Slapal Interior Architecture Design Retail Interior Design Lobby Interior

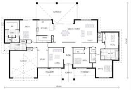
Caspian 347 On Display Our Designs G J Gardner Homes Bass Coast Home Design Floor Plans House Blueprints 4 Bedroom House Plans

Caspian 347 On Display Our Designs G J Gardner Homes Bass Coast Home Design Floor Plans House Blueprints 4 Bedroom House Plans

Source : pinterest.com